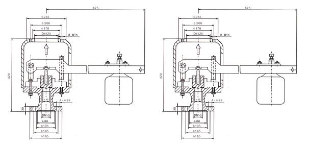
GA44H-64雙杠桿安全閥適用于工作溫度≤450℃的蒸汽,空氣等介質的設備和管路上,作為超壓保護裝置。當設備和管路內壓力超過允許值時,閥門自動開啟,繼而全量排放;當壓力降低到規定值時,閥門自動關閉,保證設備和管路的安全運行。該閥出口有套筒式、法蘭式二種選購時應以核對確認。
該安全閥適用于城建、化工、冶金、石油、制藥、食品、飲料、環保

溫馨提示:
本文中所有文字、數據、圖片均只適用于參考。需要查看更多的GA44H-64雙杠桿安全閥性能參數、結構尺寸參數、價格等詳情,或要求印刷樣本,請聯系我們。
主營產品:氣動調節閥 - 電動調節閥 - 自力式調節閥
版版權所有 © 上海大田閥門管道工程有限公司
地址:上海市浦東新區川宏路528號宏圖大樓5樓
