JO11SA系列不銹鋼電磁閥是自動控制系統中常見的管路開關元件,被廣泛應用于石油、化工、冶金、紡織、食品、造船、醫療、環保及其他各工業部門的管路裝置中,完成系統中氣體、蒸汽、液體、油類(≤4°E)等介質的自動控制,實現節能和程序控制的自動化。

| 工作介質 | 蒸汽、空氣、水、油(粘度≤4°E) | |||||||||
|---|---|---|---|---|---|---|---|---|---|---|
| 介質溫度℃ | ≤155 | |||||||||
| 公稱壓力(MPa) | 1.0 | |||||||||
| 工作壓差(MPa) | 0~1.0 | 0.01~1.0 | ||||||||
| 電源電壓 | AC220V其余規格可作特殊訂貨 | |||||||||
| 使用壽命 | 按JB/T7352-94規定 | |||||||||
| 額定流量系數(KV) | ||||||||||
| 泄漏量ml/min | 按JB/T7352-94·F規定 | |||||||||
| 公稱通徑(mm) | 3 | 4 | 5 | 6 | 8 | 10 | 15 | 20 | 25 | |
| 功耗(VA) | 17 | |||||||||
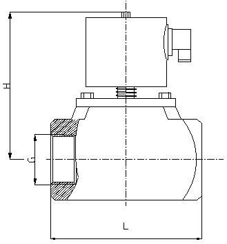
| 公稱通徑 DN | 外形尺寸 | 螺紋連接 | |
|---|---|---|---|
| H | L | G | |
| 3 | 92 | 70 | 1/2 |
| 4 | 92 | 70 | 1/2 |
| 5 | 92 | 70 | 1/2 |
| 6 | 92 | 70 | 1/2 |
| 8 | 95 | 70 | 1/2 |
| 10 | 95 | 70 | 1/2 |
| 15 | 95 | 70 | 1/2 |
| 20 | 95 | 70 | 3/4 |
| 25 | 100 | 90 | 1 |

溫馨提示:
本文中所有文字、數據、圖片均只適用于參考。需要查看更多的JO11SA系列不銹鋼電磁閥性能參數、結構尺寸參數、價格等詳情,或要求印刷樣本,請聯系我們。
主營產品:氣動調節閥 - 電動調節閥 - 自力式調節閥
版版權所有 © 上海大田閥門管道工程有限公司
地址:上海市浦東新區川宏路528號宏圖大樓5樓
